Локальное очистное сооружение Alta Air Master PRO 80 в Калуге
За пределами населенных пунктов, в местах, где отсутствуют инженерные сети водоснабжения и канализации, для очистки сточных вод от индивидуальных построек используются локальные установки очистки сточных вод.
Alta Air Master PRO 80 подходит для комфортного проживания до 400 человек и обеспечивает экологичное и надежное решение проблем с очисткой сточных вод для группы коттеджей.
Документы на оборудование
Описание
Локальное очистное сооружение Alta Air Master PRO 80
Очистное сооружение глубокой биохимической очистки хозяйственно-бытовых сточных вод Alta Air Master PRO 80
- идеальное решение для очистки стока жилых комплексов:
- гостиницы;
- пансионаты;
- санатории;
- комплексы жилых зданий;
- коттеджные поселки;
- микрорайоны;
- населенные пункты и т. д.
- объектов военного назначения: военных городков, частей и т. д.
Очистные сооружения глубокой биохимической очистки хозяйственно-бытовых и промышленных сточных вод Alta Air Master PRO 80 - это модульные устройства для подземной установки. Все конструктивные элементы и детали очистных сооружений, контактирующие со сточными водами, выполнены из коррозийностойкого материала — полипропилена. Конструкция Alta Air Master PRO 80, разработанная Компанией Alta Group, рассчитана на неравномерное поступление сточных вод в течение суток.
Плюсы Alta Air Master PRO 80
- Длительная сохранность биомассы без поступления стоков (1-я камера, является гасителем напора и резервом органических элементов для жизнедеятельности бактерий, суточная неравномерность поступления используется для повышения качества очистки).
- Отстойник с использованием системы ламелей до 4-х раз эффективней.
- Применение систем коагуляции.
- Промышленное исполнение с напорными флотаторами.
- Разрешен сброс очищенной воды в водоемы рыбохозяйственного значения (при установке использования комплекта УФ обеззараживания Alta BioClean).
- Гарантированное отсутствие запахов при работе.
- Высокая механическая прочность.
- Уникальная система обеззараживания осадка.
- Регулярное автоматическое удаление осадка и отмершей биомассы.
- Использование погруженной биозагрузки с закрепленной биомассой.
- Возможность дистанционного контроля и управления основными параметрами станции (при условии установки блока SMS оповещения Alta Contact).
- Автоматическое дозирование реагентов точно по реальному расходу стоков (коагулянт, флокулянт, обеззараживание осадка).
- Система аварийной сигнализации с памятью ошибок.
- Индикация уровня реагентов.
- Возможность выноса аварийного блока и блока индикаторов.
- Простота и низкая стоимость монтажа (весь комплекс поставляется готовыми, полностью укомплектованными и готовыми к монтажу блоками).
- Нет необходимости использования крупногабаритной спецтехники при монтаже и доставке на объект.
- Не требуется дополнительная теплоизоляция.
- Простота и удобство в обслуживании.
- Отсутствие коррозии корпуса и технологических элементов.
- Длительный срок эксплуатации (более 50 лет).
- Экологическая безопасность.
Биологическая очистка сточных вод
Сточные воды последовательно проходят денитрификатор и аэротенк (первая ступень), аэробный биореактор и вторичный отстойник (вторая ступень).
Четкое разделение на технологические зоны позволяет обеспечить селекцию биоценоза, на каждом этапе для протекания требуемых биохимических реакций формируются соответствующие микроорганизмы. Технологические зоны оснащены загрузочным материалом AltaBioLoadTM. Микроорганизмы представлены двумя основными видами: биопленка, прикрепленная на петельной трубчатой биозагрузке, и свободно плавающий активный ил. Основным биоценозом является прикрепленный. Разнообразие биоценоза способствует стабильному глубокому извлечению органических и азотных соединений.
В денитрификаторе происходит смешение очищаемых сточных вод с циркуляционными потоками. Для создания требуемых для денитрификации кислородных условий, а также поддержания биомассы во взвешенном состоянии предусмотрена система кратковременного пневматического перемешивания.
Из денитрификатора сточные воды самотеком направляются в аэротенк, где в аэробных условиях протекает окисление органических веществ и частичная нитрификация. Биомасса поддерживается во взвешенном состоянии за счет постоянно работающей системы аэрации.
После первой ступени сточные воды самотеком поступают на стадию глубокой биологической очистки от азотных соединений в аэробный биореактор. В биореакторе постоянно поддерживается оптимальный для развиваемого биоценоза гидравлический и кислородный режим за счет управляемой системы аэрации и рециркуляции. В конец биореактора дозируется коагулянт для укрупнения частиц биопленки перед их осаждением, а также химической дефосфотации.
Жидкость из биореактора поступает во вторичный отстойник, где от очищенной воды отделяется выносимая из биореактора биомасса. Биологически очищенные сточные воды поступают в камеру чистой воды.
Создание тонкого слоя отстаивания и разработанная система непрерывного гидравлического удаления осадка позволяет быстро осуществлять отделение биомассы, а также поддерживать ее в активном состоянии, исключая загнивание.
Отделенная биомасса насосами циркулирует по системе, что позволяет снизить пиковые массовые нагрузки, обеспечить требуемый технологический режим и поддерживать благоприятные условия для биоценоза. Часть биомассы перекачивается в камеру стабилизации, где происходит процесс аэробной стабилизации и минерализации.
Система многократной двухконтурной рециркуляции позволяет реализовать в сооружениях самобалансирующийся механизм поддержания требуемой концентрации биомассы. Сбор и удаление осадка работает по программе, учитывающей суточную неравномерность поступления сточных вод. Система глубокой минерализации и управляемой рециркуляции позволяет добиться сокращения прироста биомассы до 10 крат по сравнению с технологиями, основанными на активном свободноплавающем иле. Использование прикрепленного биоценоза в качестве основной биомассы, наряду с механизмами самобалансирования очистного сооружения под текущую органическую нагрузку, позволяет получать высокие результаты по очистке сточных вод начиная уже с 10% загрузки очистного сооружения от номинальной.
Необходимый для биохимических процессов кислород поступает в толщу камер путем подачи воздуха через аэраторы. Камеры оснащены регулируемой и дистанционно управляемой системой аэрации и распределения воздуха, что позволяет создать требуемые кислородные условия.
Доочистка и обеззараживание
Alta Bio Clean (АВС)
Биологически очищенные сточные воды из камеры чистой воды забираются консольными насосами на ступень доочистки и обеззараживания сточных вод Alta Bio Clean (АВС), включающую в себя напорные фильтры, установку УФ обеззараживания и систему автоматизации и управления.
Сточные воды последовательно проходят через песчаные и угольные фильтры, которые предназначены для глубокой доочистки от тонкодисперсной механической взвеси, обеззараживание обеспечивается УФ-облучением.
Система работает в автоматическом режиме, при обслуживании и эксплуатации требует обратной промывки фильтров. На период пусконаладочных работ и для обеспечения безопасного обслуживания без остановки процессов очистки оборудование АВС имеет резервирование и оснащено байпасами.
Обработка осадка
Накопление и вывоз осадка
Образующийся осадок из ААМР периодически откачивается в накопитель, откуда по мере накопления вывозится на утилизацию. Накопитель оснащен системой механического перемешивания для предотвращения слеживания и загнивания, а также системой контроля уровня с автоматизированным оповещением о необходимости откачки осадка на утилизацию.
Обезвоживание осадка
Дополнительно сооружения могут оснащаться блоком обезвоживания образовавшегося осадка. Обезвоженный осадок вывозится на утилизацию, а отделенная вода отправляется на повторную обработку.
Система удаленного технологического контроля (SCADA-система)
Для оповещения и дистанционного управления работой очистных сооружений и для своевременного предупреждения аварийных ситуаций, станцию оборудуют системой дистанционного управления.
-
отображает состояния всех датчиков, установленных в станции (датчики уровня, датчики температуры, показания расходомера, манометры).
-
отображает работу насосного оборудования, воздуходувок, электромагнитных клапанов и др.
-
позволяет производить обработку и визуализацию поступающих данных (графики, тренды, таблица событий и т.д.), с возможностью вывода их в файл.
-
отображает уставки времени работы оборудования и позволяет их изменять.
-
позволяет производить удаленное управление оборудованием станции (воздуходувки, насосные пары, насосы ЛУО, электромагнитный клапан и др.).
-
присутствуют функции настраиваемой e-mail рассылки о событиях.
Также в проект SCADA-системы входят экраны содержащие интерактивные Технологическую схему КОС и схему расстановки оборудования, на которых пользователь может ознакомится с содержанием того или иного Блока и проследить работу оборудования. В базовой комплектации предусмотрено СМС оповещение, которое включает в себя 2 функции. СМС об отсутствие питания на станции и СМС об каком-либо событии. Вторая СМС не конкретизирует событие, лишь уведомляет о необходимости внимания оператора.
Компания Alta Group переходит на новую инновационную систему управления оборудованием очистного сооружения серии Alta Air Master и Alta Air Master PRO. Модуль коммутации силовой нагрузки Alta Electroad Dot предназначен для коммутации силовой нагрузки и контроля ее работы.
ОСНОВНЫЕ ХАРАКТЕРИСТИКИ И УСЛОВИЯ ЭКСПЛУАТАЦИИ
- Класс защиты от поражения электрическим током – I, по ГОСТ 30345.0-95 (МЭК 335-1-91);
- Электропитание – 400±40 В, 50±0,4 Гц;
- Максимальный рабочий ток – 15 А;
- Максимальное коммутируемая нагрузка трехфазного выхода – 15 А (категория нагрузки AC-3);
- Максимальная коммутируемая нагрузка однофазного выхода – 5 А (категория нагрузки AC-3);
- Отсутствие в окружающей атмосфере агрессивных и взрывоопасных паров и газов;
- Температура окружающего воздуха: от -20 до +40 °С;
- Степень защиты по ГОСТ 14254 (МЭК 529-89): IP68;
Обращаем ваше внимание, что к монтажу и подключению модуля допускается персонал, прошедший аттестацию по технике безопасности, имеющий доступ к работе с электроустановками напряжением до 1000В (квалификационная группа не ниже 3).
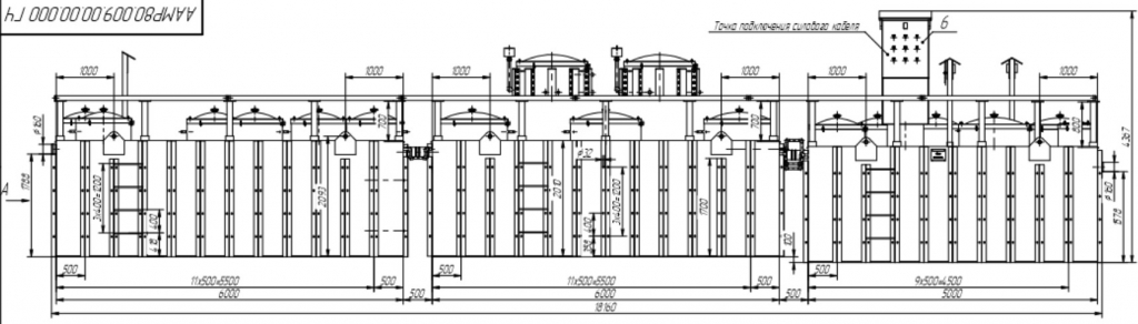
Габаритные размеры
Характеристики
|
Система управления
|
Да |
|
Версия системы управления
|
Alta Electroad Dot ver.2.02 |
|
|
80 |
|
Количество пользователей до
|
400 |
|
Транспортировочный вес, кг
|
8100 (транспортировочный), 80100 (макс.рабочий) |
|
Площадь для установки системы, м²
|
936,9 |
|
Установочная мощность, кВт
|
10,9 кВт (с запасом 5%) |
|
Энергопотребление, кВТ/ч
|
9 кВт*час (с запасом 5%) |
|
Напряжение, В
|
380 |
|
Габариты (Длина х Ширина х Высота), мм
|
27700х2500х2600 |
|
Проекты
|
Хозяйственно-бытовой сток - 80 м3 в сутки, загородный клуб, Башкирия, Хозяйственно-бытовой сток - 320 м3 в сутки, коттеджный поселок, Крым |



